物件の特徴
主な設備
電気
上水道
公営水道
下水道
公共下水
都市ガス
コンロ三口
カウンターキッチン
システムキッチン
バス
ユニットバス
オートバス
バス1坪以上
追焚機能
トイレ
トイレ2箇所
温水洗浄便座
室内洗濯機置場
洗髪洗面化粧台
洗面所独立
リビング階段
モニタ付インターホン
LDK15畳以上
2面採光
フローリング
全室フローリング
クローゼット
クローゼット2箇所
クローゼット3箇所
ウォークインクローゼット
全居室収納
シューズボックス
ウッドデッキ
主な特徴
南向
耐震構造
小学校徒歩10分以内
前道6m以上
閑静な住宅街
陽当り良好
2階建
即入居可
《物件》
・アウトドアもインドアも自由に暮らしを楽しむ家
・道路面にはほとんど窓がありません
・光と開放感あふれる室内
・耐震等級3で地震に強い家
《周辺環境》
・丹陽西小学校まで徒歩9分(約700m)
・丹陽中学校まで徒歩24分(約1900m)
・ローソン 一宮猿海道店まで徒歩6分(約430m)
・緑葉公園まで徒歩6分(約460m)
・丹陽幼稚園まで徒歩7分(約500m)
\不動産会社、どうやって選んでいますか?/
不動産会社選びには3つのポイントがあります!
ポイント① 物件掲載数
ネットに載っている情報はもちろん、全てご紹介可能です♪
さらにご来店いただいたお客様限定で公開できる未公開情報も多数取り扱っております。
ポイント② 資金計画
ハウスドゥ一宮南はお家のプロでもあり、お金のプロでもあります!
ほとんどの会社では物件の提案が先行しますが、住宅購入で最も大事なのは資金計画です!
ポイント③ ワンストップサポート
ご相談からお引渡しまで専任の担当者がサポート♪
さらにハウスドゥ一宮南ではアフターフォローも充実!
物件概要
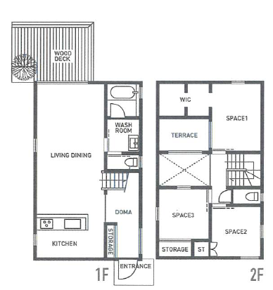
| 価格 | 4,280万円 | 間取り | 3LDK |
|---|---|---|---|
| 物件種別 | 新築一戸建て | ||
| 所在地 | 愛知県一宮市多加木4丁目 | ||
| アクセス | 名鉄名古屋本線『妙興寺』 車7分(約2.4km) JR東海道本線『尾張一宮』 車11分(約4.0km) 名鉄名古屋本線『名鉄一宮』 車11分(約4.0km) |
||
| 建物面積 | 89.42㎡ | 駐車場 | あり 普通:2台 |
| 築年月 | 2025年(令和7年)12月築 | 建築確認 | 第KS123-0410-59207号 |
| 建物構造 | 木造 2階建 | 工法 | |
| 主要採光 | 南向 | バルコニー | |
| 保証・評価 | |||
| 土地面積 | 169.07㎡(51.14坪) | 接道 | 東側(公道)幅 約20.0m |
| 私道 | セットバック | ||
| 地目 | 宅地 | 地勢 | |
| 権利 | 所有権 |
||
| 都市計画 | 市街化区域 |
用途地域 | 1種住居 |
| 建ぺい/容積率 | 60% / 200% | 土地国土法 | |
| 許可番号 | 建築基準法 | ||
| 法令制限 | |||
| 小学区 | 丹陽西小学校 徒歩9分 (約700m) | 中学区 | 丹陽中学校 徒歩24分 (約1900m) |
| 現況 | 完工済 | 引渡 | 即 |
| その他費用 | |||
| 周辺環境 | 丹陽西小学校 徒歩9分 (約700m) 丹陽中学校 徒歩24分 (約1900m) ローソン 一宮猿海道店 徒歩6分 (約430m) 緑葉公園 徒歩6分 (約460m) 丹陽幼稚園 徒歩7分 (約500m) ファミリーマート 名神一宮店 徒歩8分 (約600m) 野村内科 徒歩10分 (約750m) セブンイレブン 一宮多加木2丁目店 徒歩11分 (約820m) ドラッグスギヤマ 多加木店 徒歩13分 (約980m) ミニストップ 稲沢旗屋町店 徒歩17分 (約1300m) |
||
| 備考 | |||
| 物件番号 | 4683524 | 取引態様 | 媒介 |

















担当エージェント:岩井 響
\ハウスドゥ一宮南は資金面の提案に自信をもっています/
マイホーム購入で1番重要と言っても過言でないのが【資金】のお話です。
様々な銀行との取引実績があり、常にトレンドを学んでいますので
お客様一人一人に合ったご提案が出来ます。
「借り入れがあっても住宅ローンは組めるのか」
「金利上昇や補助金について詳しく知りたい」
「将来マイホーム購入を検討している」
まずはお気軽にご相談ください♪
不動産のプロがお客様の疑問を全て解決いたします!
■ハウスドゥ一宮南の特徴■
・キッズスペースやベビーベッドがありお子様と一緒のご来店も大歓迎!
・お仕事終わりの時間もご相談もOK♪
・ご来店が難しい場合はお迎えや他の場所でのご相談も可能!
・ご相談特典があるお店♪
◆ご予約方法◆
【見学予約する】の黄色いボタン、または【資料請求・お問合せ】の紺色のボタンをクリック!!
お問合せ後、こちらから速やかにご連絡させていただきます。
直接来店やお電話でのお問い合わせも承っております♪
住所:一宮市森本4-13-18 電話:0120-598-777